Welcome to 107 Harbour Boulevard, a beautifully designed and feature-packed family home in the exclusive Calypso Bay estate. Positioned on a spacious 918m² block, this expansive 395m² residence offers luxury, flexibility, and lifestyle in one of Jacobs Well's most sought-after waterfront communities.
Premium Features & Inclusions
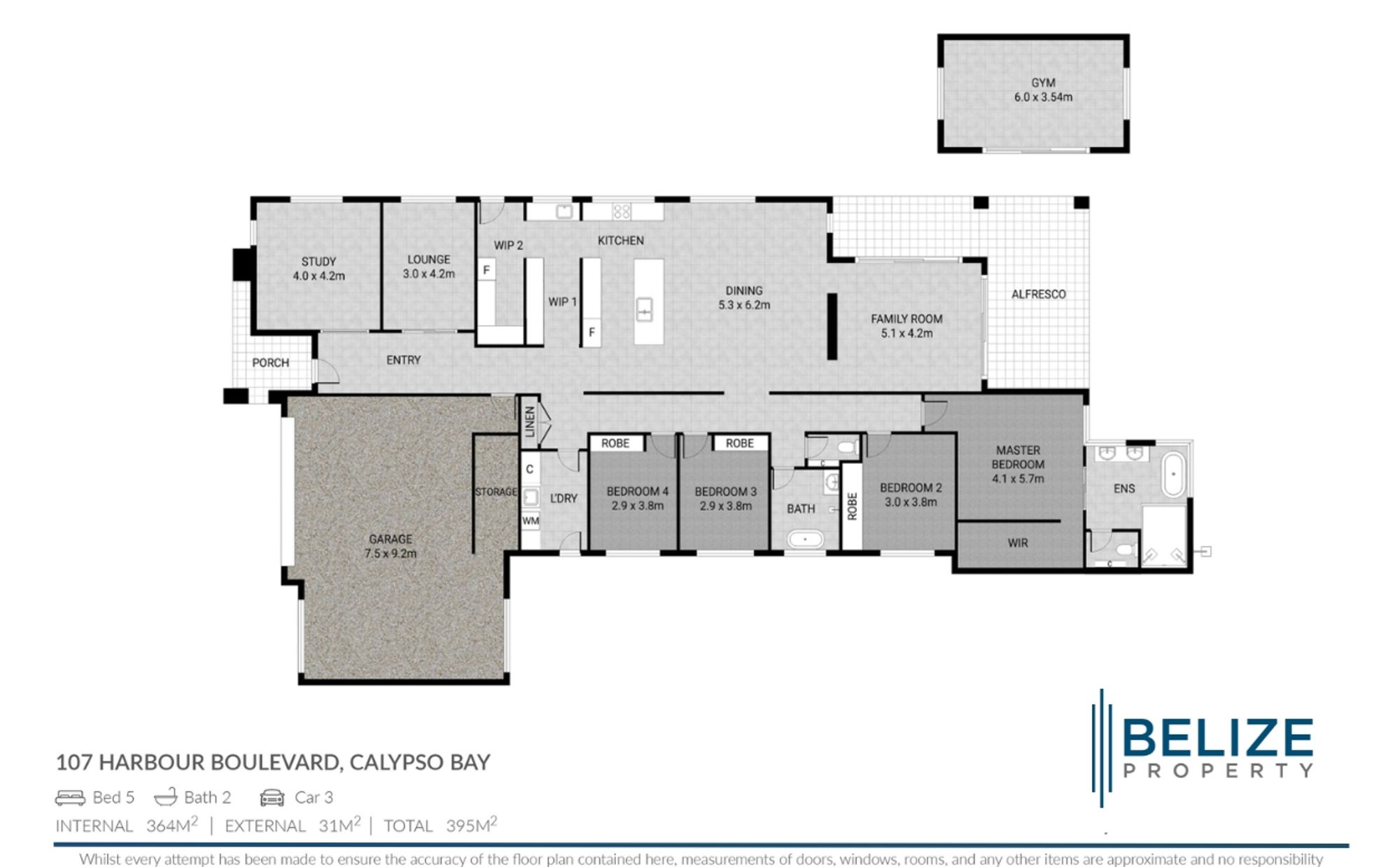
- Triple car garage with additional workshop space
- 25m² of roof storage with pull-down ladder
- Drive-through access with large service area - ideal for boat, camper, or jetski
Flexible Living & Accommodation
- 4 generous bedrooms plus a 5th bedroom/home office option
- Master suite with walk-in robe and luxury ensuite featuring freestanding bath & double shower
- Media room, rumpus/lounge, and private fitness studio
- Light-filled open-plan living with gas fireplace
Chef's Kitchen & Butler's Pantry
- Gourmet kitchen with stone island, Bosch appliances, and gas cooktop
- Dual ovens, steamer, microwave, and dishwasher
- Full butler's kitchen plus large walk-in pantry with extra fridge space
- Zip HydroTap for instant boiling water
Outdoor Entertaining & Landscaping
- Covered alfresco area perfect for entertaining
- 8-person magnesium hydrotherapy spa
- Outdoor shower for beach and lake days
- Immaculately landscaped gardens with full irrigation system
Comfort & Sustainability
- Ducted air conditioning throughout
- 13kW solar power system
- Functional laundry with storage and direct courtyard access
- Wide hallways and 2.7m high ceilings enhance the home's grand feel
Location & Lifestyle
- Lifestyle & Location:
- Enjoy access to Calypso Bay's premium Residents Leisure Centre, including:
- Lap & Recreation Pools, Kids' Pool
- Gymnasium, Function Room, Tennis Courts
- Private Parklands & Onsite Café
- 24/7 patrolled security for peace of mind
Central & Convenient
- 30 mins to Southport, 45 mins to Brisbane
- Close to local schools, shopping, and the Broadwater
- Walk to marina boardwalks, boat ramps & Montauk Tavern
This is your chance to own one of Calypso Bay's most beautifully designed homes - perfect for large families, entertainers, and boating enthusiasts.
Land Size
918 Square Mtr
Airconditioning
Built-in Robes
Dining Area
Ducted Cooling
Ducted Heating
Solar Panels
Study
